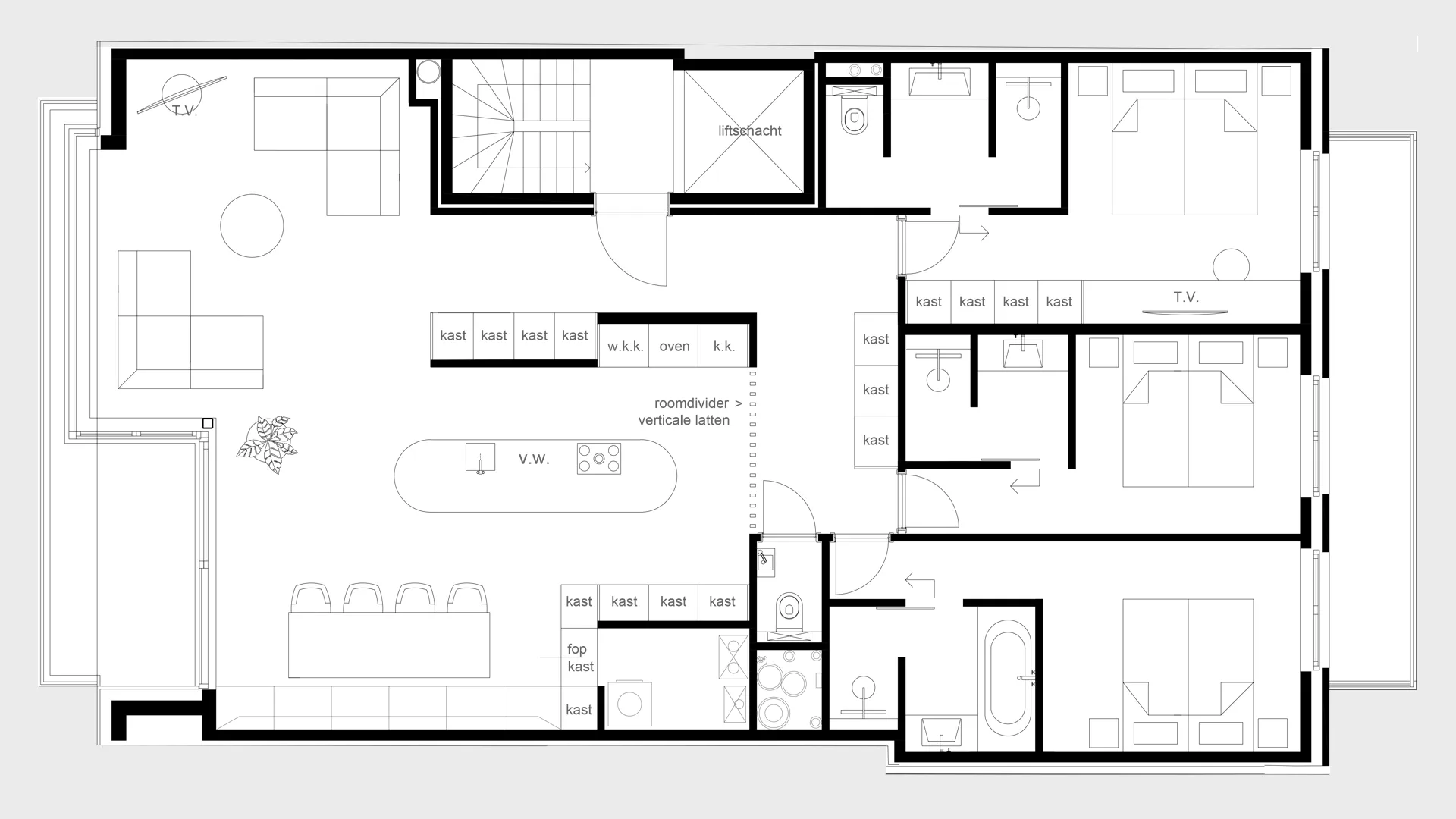
Interieur plattegrond RB
- Woningtype: Appartement
- Type project: Nieuwbouw
- Locatie: Knokke
- Oppervlakte: 95 m²
- Aantal verdiepingen: 1
Omschrijving project
Een nieuwbouw appartement welke door de ontwikkelaar met een basisindeling werd opgeleverd. Wij werden vervolgens benaderd om hier meer uit te halen. Na de wensenbespreking volgde er 3 totaal verschillende indeling concepten maar wel rekening houdend met de bestaande leidingschachten en mogelijkheden binnen dit project.
Na het presenteren van alle concepten heeft de klant gekozen voor concept 3.Een totale metamorfose ten opzichte van de standaard indeling.



