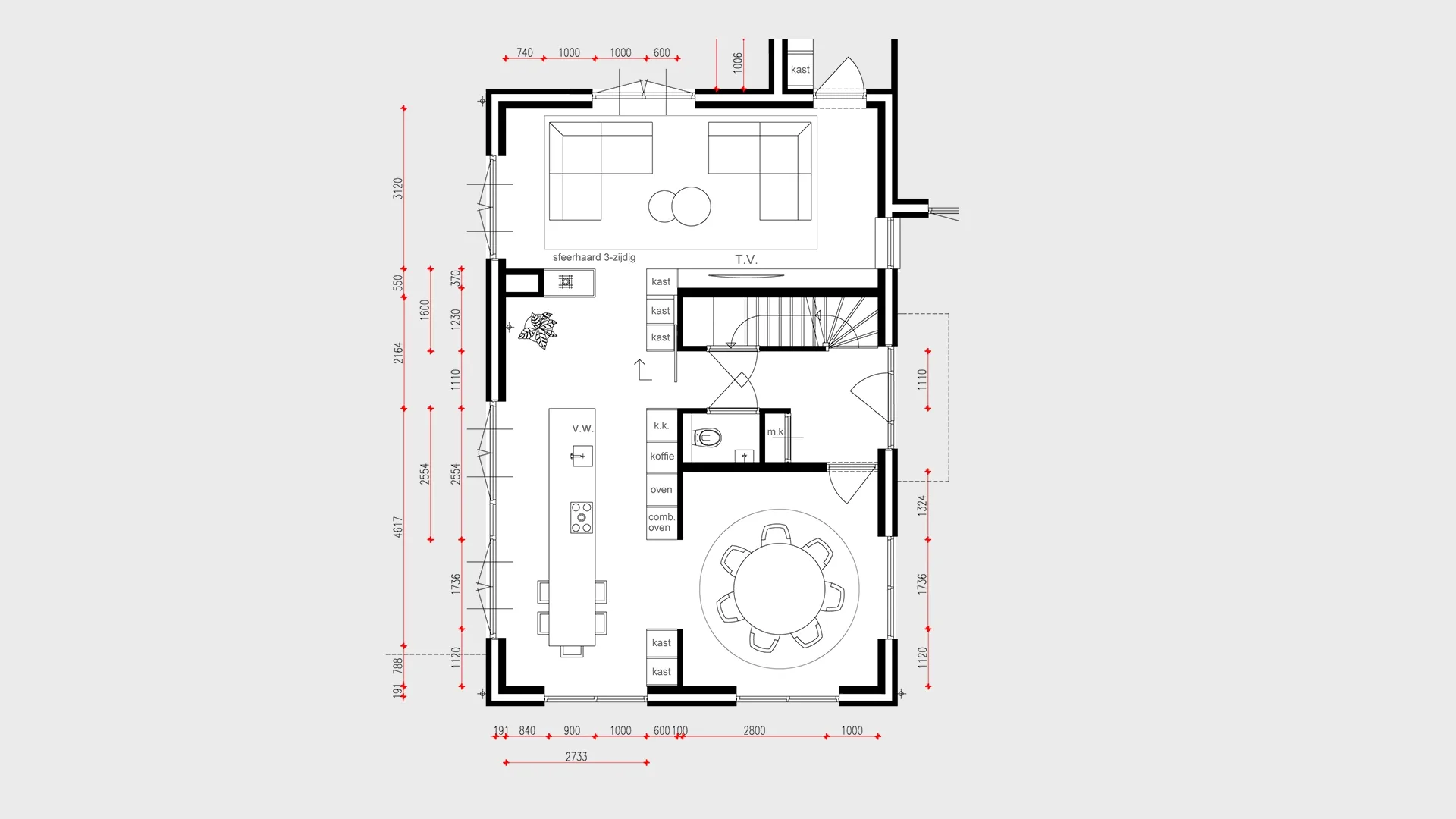
Interieur plattegrond PC
- Woningtype: Woonhuis
- Type project: Nieuwbouw
- Locatie: Oosterbeek
- Oppervlakte: 140 m²
- Aantal verdiepingen: 1
Omschrijving project
Een nieuwbouwproject waarin wij nog veel ruimte en vrijheid kregen om de optimale indeling samen te stellen.
We hebben de thema's wonen, koken en eten verdeeld met elkaar verbonden en gebruik gemaakt van verschillende roomdividers. In elk concept weer op een andere manier.
De compacte hal hebben we ook meer verbonden met de woonruimte om een ruimtelijk effect te creëren.
Na het presenteren van alle concepten heeft de klant gekozen voor concept 2. Dit was voor hun de optimale indeling!




