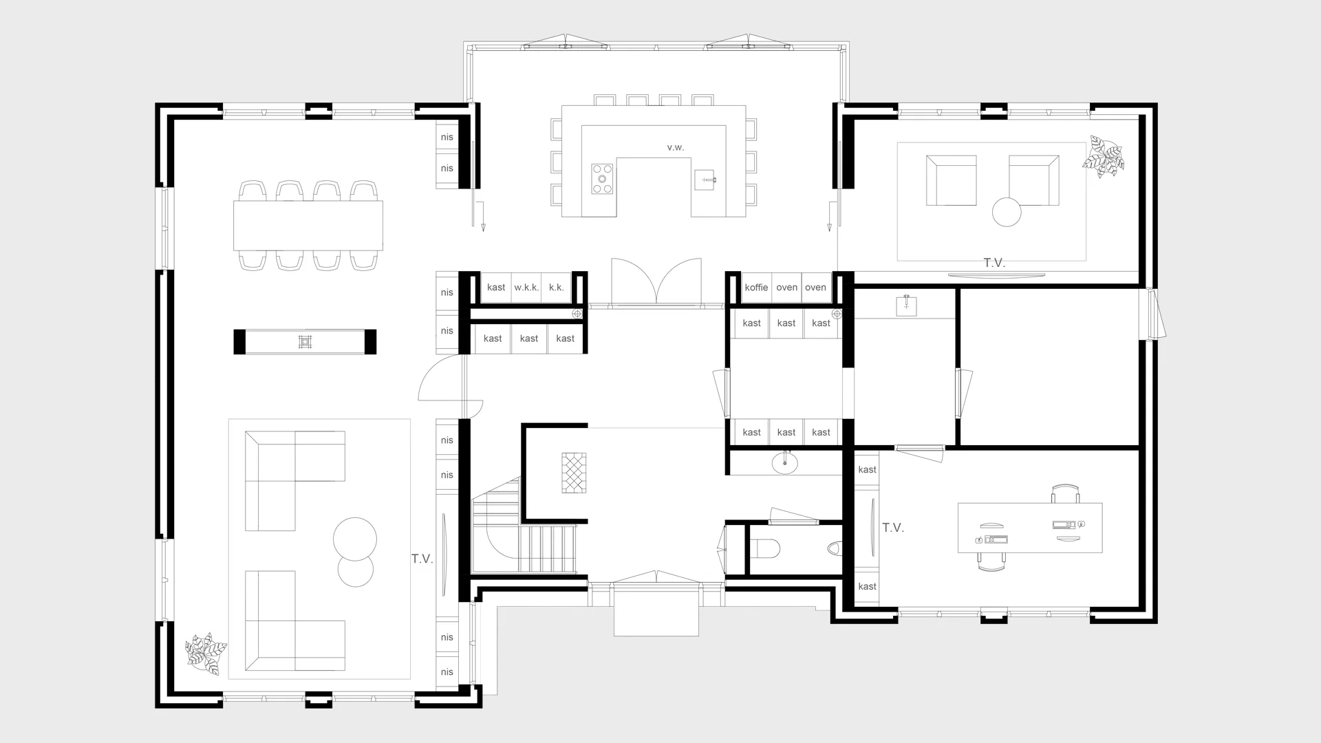
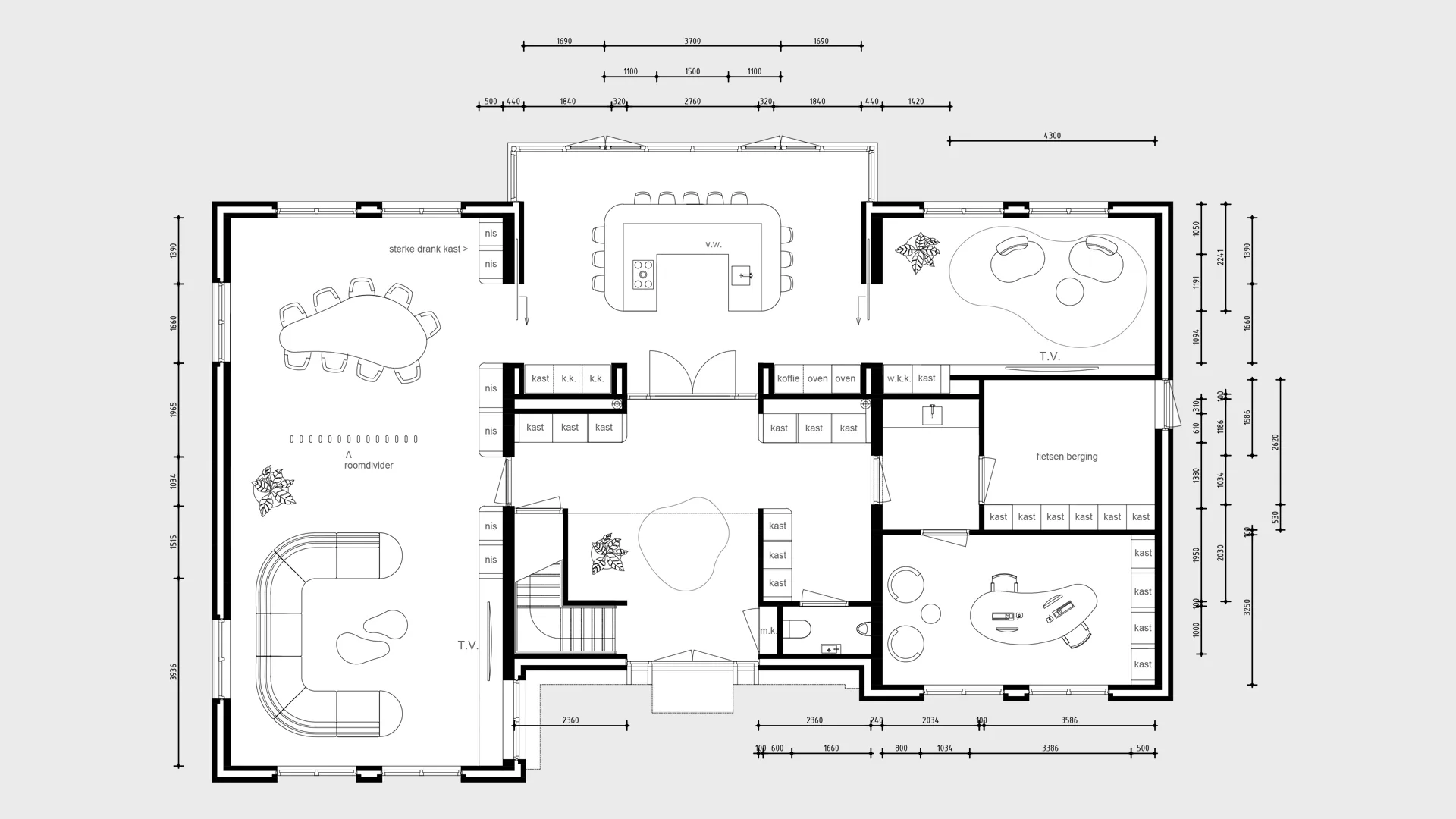
interieur plattegrond JM
- Woningtype: Woonhuis
- Type project: Renovatie
- Locatie: Breda
- Oppervlakte: 310 m²
Omschrijving project
Een bestaande woning waar de klant al +/- 10 jaar woonachtig was. Wij zijn benaderd om er in de basis een compleet nieuwe woning van te maken. In de indeling zowel esthetisch als functioneel.
Door de grote oppervlaktes hadden we veel vrijheid in de creativiteit. Er zijn veel zichtlijnen ontstaan en door de blinde schuifdeuren kunnen ruimtes met elkaar verbonden worden of juist privacy bieden.
Tevens zijn er zowel strakke als organische vormen uitgetekend in de verschillende concepten.
Na het presenteren van alle concepten heeft de klant gekozen voor een combinatie van de verschillende concepten



