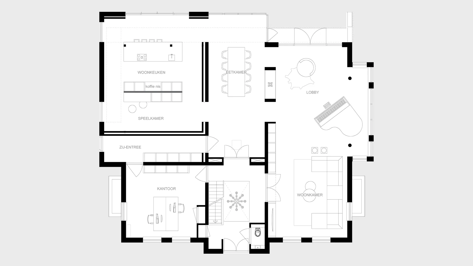
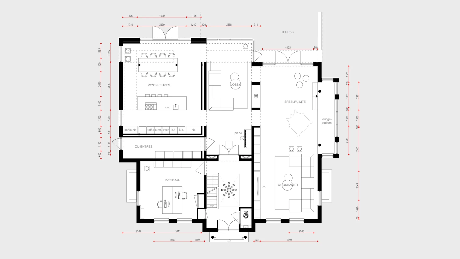
Interieur plattegrond CM
- Woningtype: Woonuis
- Type project: Renovatie
- Locatie: Rosmalen
- Oppervlakte: 280 m²
- Aantal verdiepingen: 2
Omschrijving project
Een bestaande woning die werd aangekocht door onze klant en compleet verbouwd moest worden.
Waar aan de linkerzijde de inpandige garage zat hebben we compleet bij de woonruimte getrokken. Hier hebben we de royale woonkeuken gesitueerd.
De indeling concepten gaven een complete metamorfose weer ten opzichte van de bestaande situatie, met enorm veel potentie.
Na het presenteren van alle concepten heeft de klant gekozen voor concept 3 als optimale indeling!




