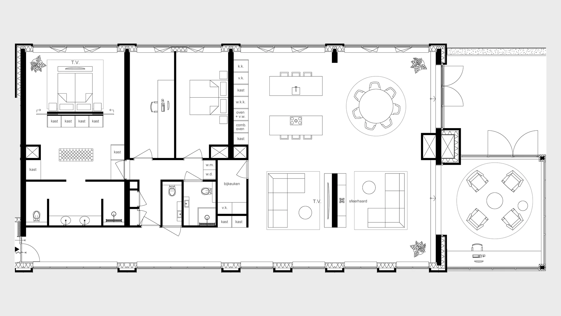
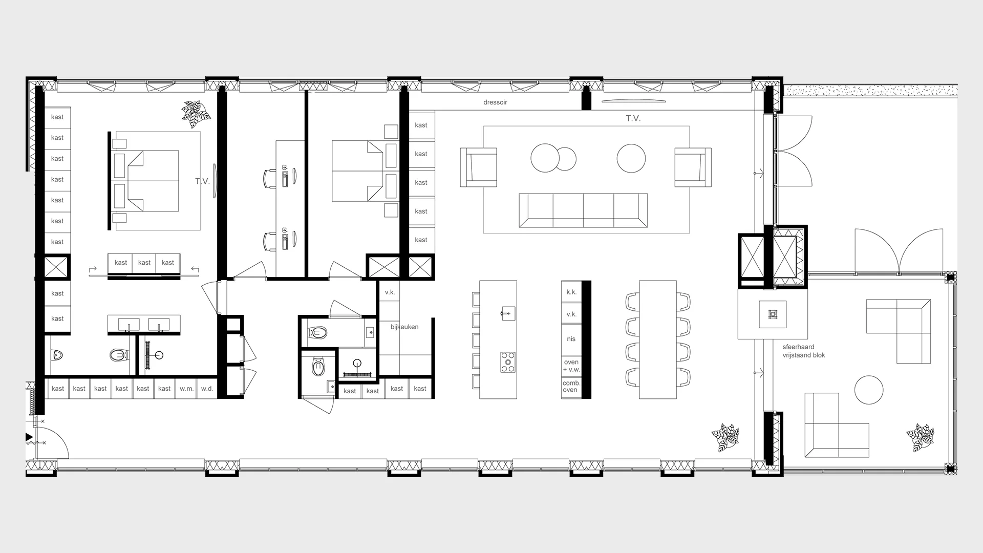
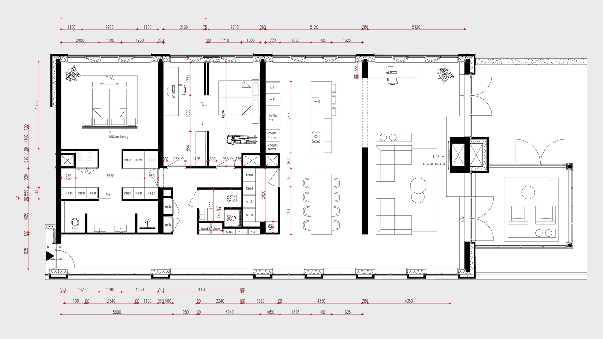
Interieur plattegrond HM
- Woningtype: Penthouse
- Type project: Nieuwbouw
- Locatie: Utrecht
- Oppervlakte: 170 m²
- Aantal verdiepingen: 1
Omschrijving project
Een nieuwbouw appartement welke door de ontwikkelaar met een basisindeling werd opgeleverd. Wij werden vervolgens benaderd om hier meer uit te halen. Na de wensenbespreking volgde er 3 totaal verschillende indeling concepten maar wel rekening houdend met de bestaande leidingschachten en mogelijkheden binnen dit project.
Na het presenteren van alle concepten heeft de klant gekozen voor concept 1 met hier en daar wat kleine wijzigingen. Een totale metamorfose ten opzichte van de standaard indeling.




