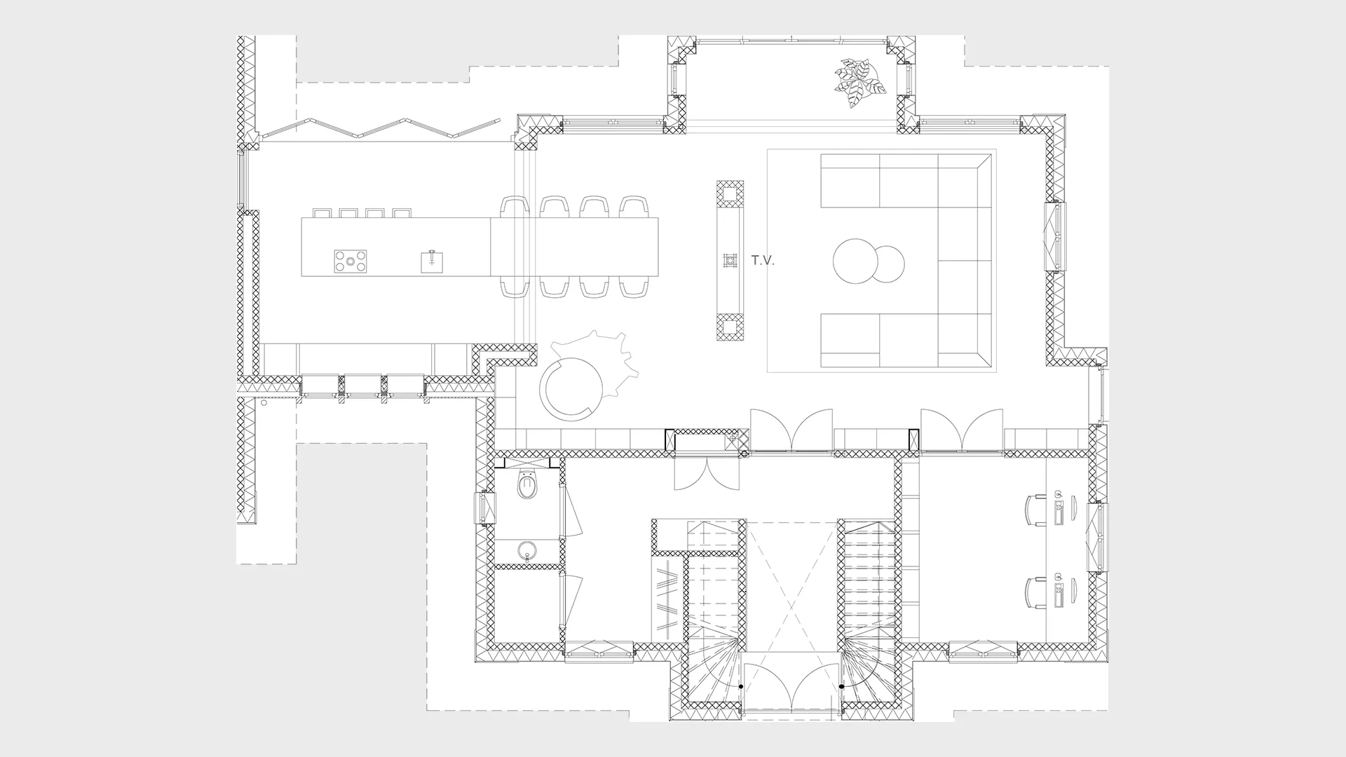
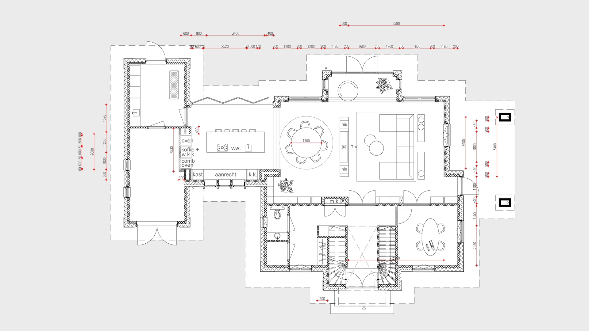
Interieur plattegrond JI
- Woningtype: Woonhuis
- Type project: Nieuwbouw
- Locatie: Pijnacker
- Oppervlakte: 375 m²
- Aantal verdiepingen: 3
Omschrijving project
Bij dit nieuwbouwproject hadden we een hele prettige samenwerking met de architect: WNS architecten. Waar zij stopte gingen wij verder.
Het voordeel van nieuwbouw is dat er weinig belemmeringen zijn; het is nog niet in beton gegoten. Hierdoor ontstonden er 3 unieke concepten.
De dubbele trapopgang zorgt voor symmetrie en geeft direct een grande entree, dit stond al zo ingetekend door WNS architecten en hebben we in alle concepten gehandhaafd.
Na het presenteren van alle concepten heeft de klant gekozen voor concept 1 met hier en daar wat kleine wijzigingen.




