Interieur plattegrond TC
- Woningtype: Woonhuis
- Type project: Nieuwbouw
- Locatie: Den Bosch
- Oppervlakte: 235 m²
- Aantal verdiepingen: 1
Omschrijving project
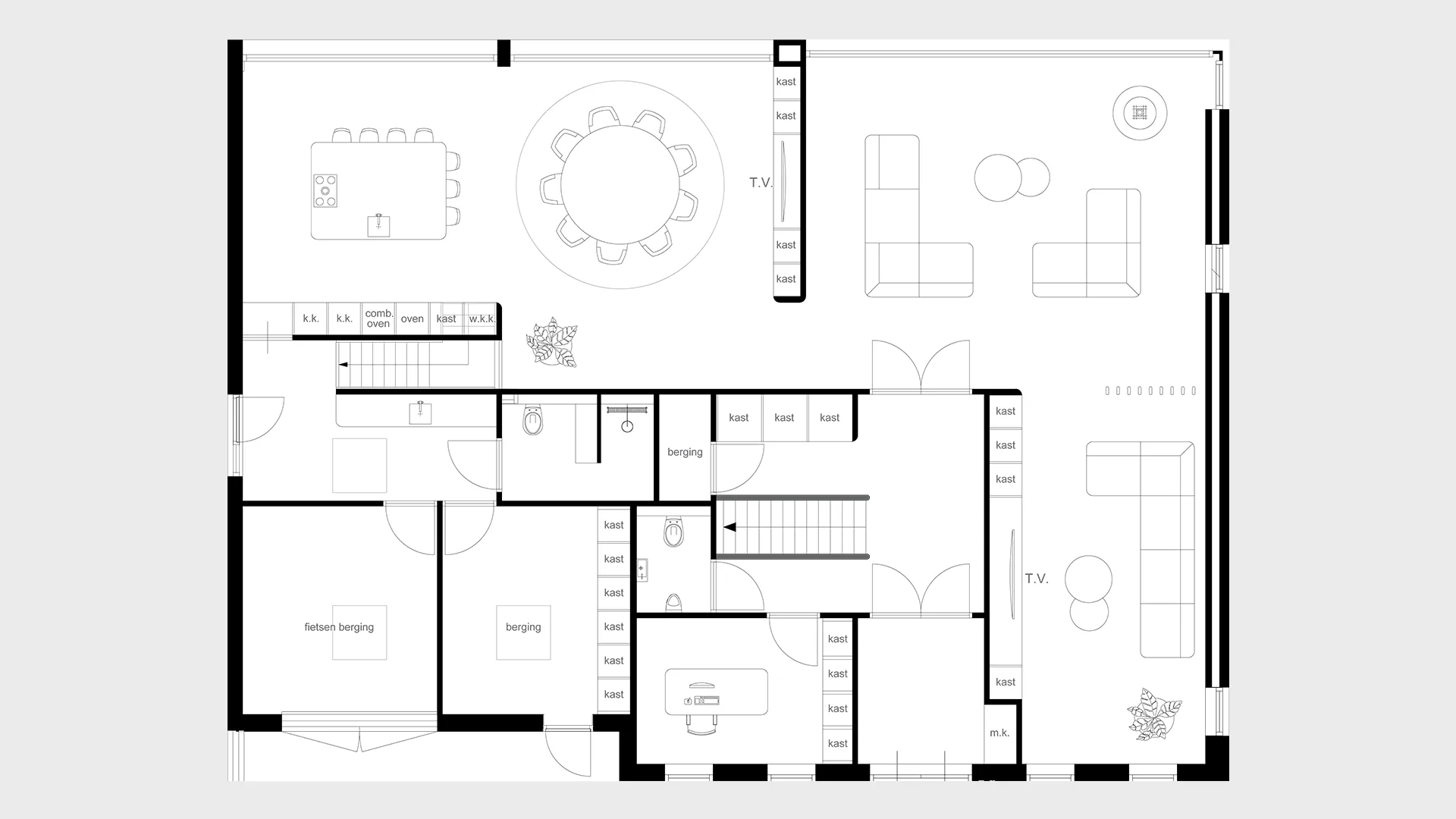
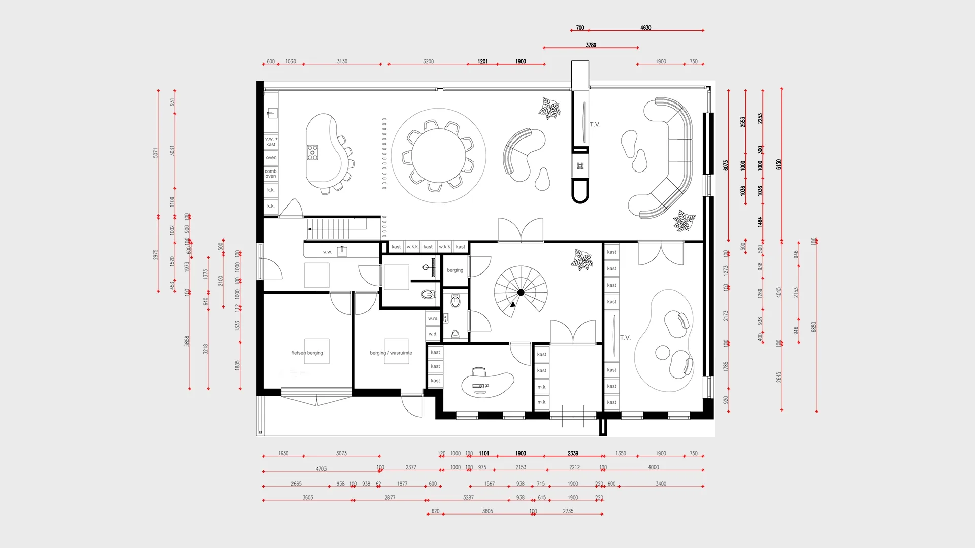
Waar de architect stopte, zijn wij verdergegaan. De ontvangen basisindeling hebben we compleet blanco getrokken en volledig opnieuw vormgegeven. Het voordeel van nieuwbouw is dat er weinig belemmeringen zijn; het is nog niet in beton gegoten.
De basisplattegrond bestond uit veel kleine ruimtes en miste lijnenspel en symmetrie. Door een aantal wanden te verplaatsen ontstond een royale hal met een wenteltrap als eyecatcher. Ook de woonruimtes zijn groter geworden en meer met elkaar verbonden, wat zorgt voor ruimtelijkheid.
De wens van de klant om ronde, organische vormen terug te zien, hebben we verwerkt in een aantal (kasten) wanden en in het losse meubilair.
Uiteindelijk is er een combinatie gemaakt tussen de verschillende concepten wat uiteindelijk dé optimale indeling is geworden!




