Interieur plattegrond ED
- Woningtype: Woonhuis
- Type project: Renovatie
- Locatie: Delft
- Oppervlakte: 190 m²
- Aantal verdiepingen: 2
Omschrijving project
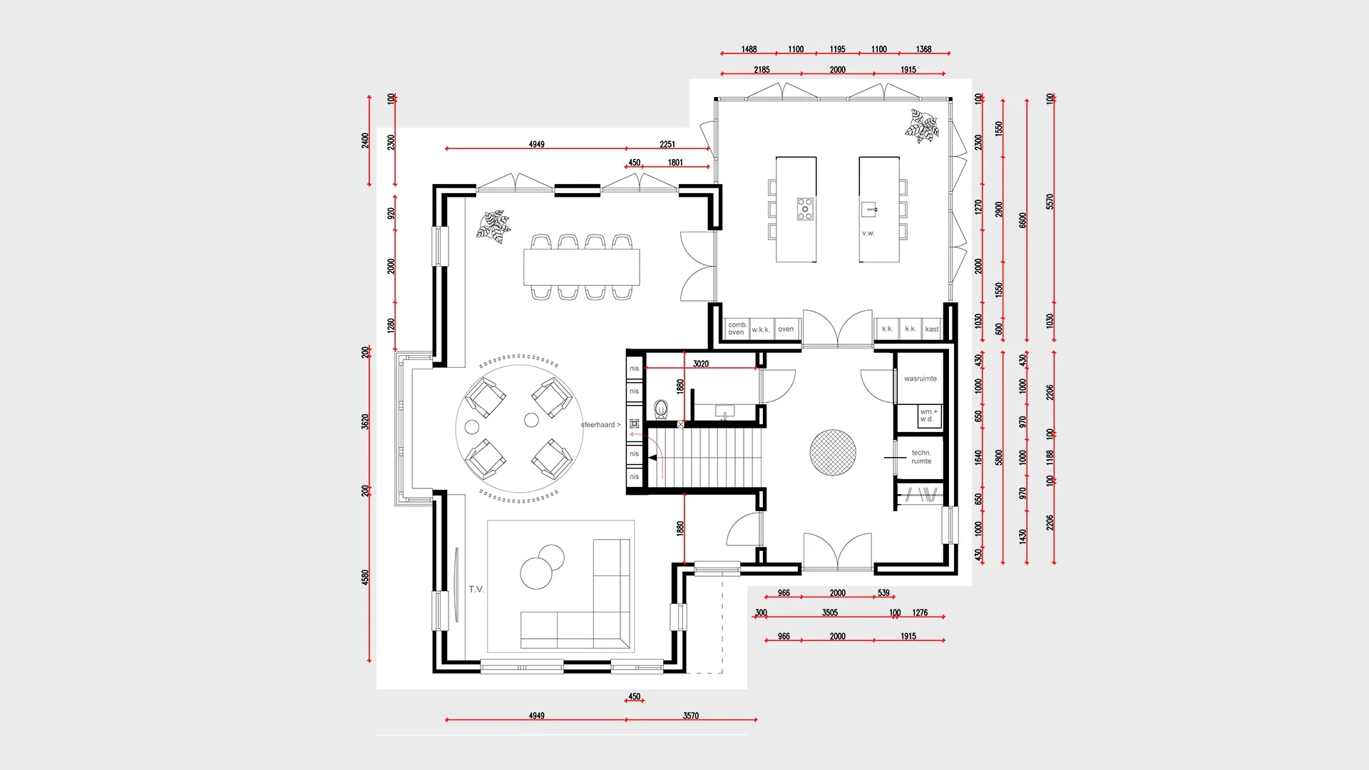
Een bestaande woning die werd aangekocht door onze klant en compleet verbouwd moest worden.
Waar de garage zat hebben we bij de woonruimte getrokken en een royale entree / hal van gemaakt met een brede trapopgang. Aan de achterzijde hebben we een uitbouw getekend waar de woonkeuken, eetkamer of woonkamer is gesitueerd. Verdeeld onder de verschillende concepten.
De indeling concepten gaven een complete metamorfose weer ten opzichte van de bestaande situatie, met enorm veel potentie.
Na het presenteren van alle concepten heeft de klant gekozen voor concept 2 met hier en daar wat kleine wijzigingen.




