Volg ons op social media »
Home
Projecten
Pakket & Tarief
Over ons
Contact
Start jouw aanvraag
Concept 1
Concept 2
Concept 3
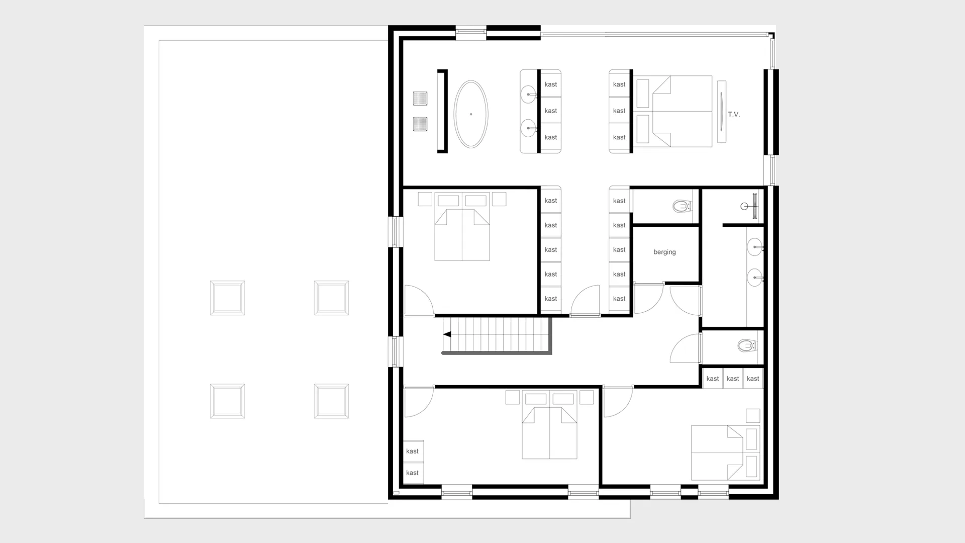
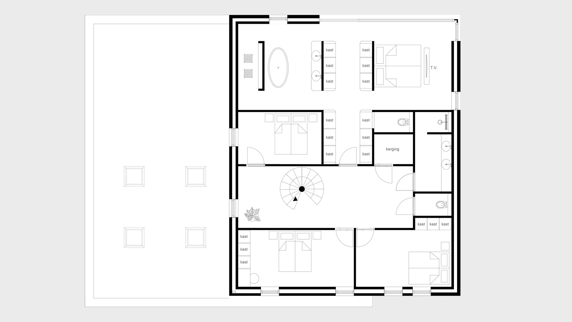
Optimale indeling
Interieur
plattegrond TC
Woningtype: Villa
Type project: Nieuwbouw
Locatie: Den Bosch
Oppervlakte: 235 m²
Aantal verdiepingen: 1
Omschrijving
project
Terug naar overzicht
Vorige
Volgende