Volg ons op social media »
Home
Projecten
Pakket & Tarief
Over ons
Contact
Start jouw aanvraag
Concept 1
Concept 2
Concept 3
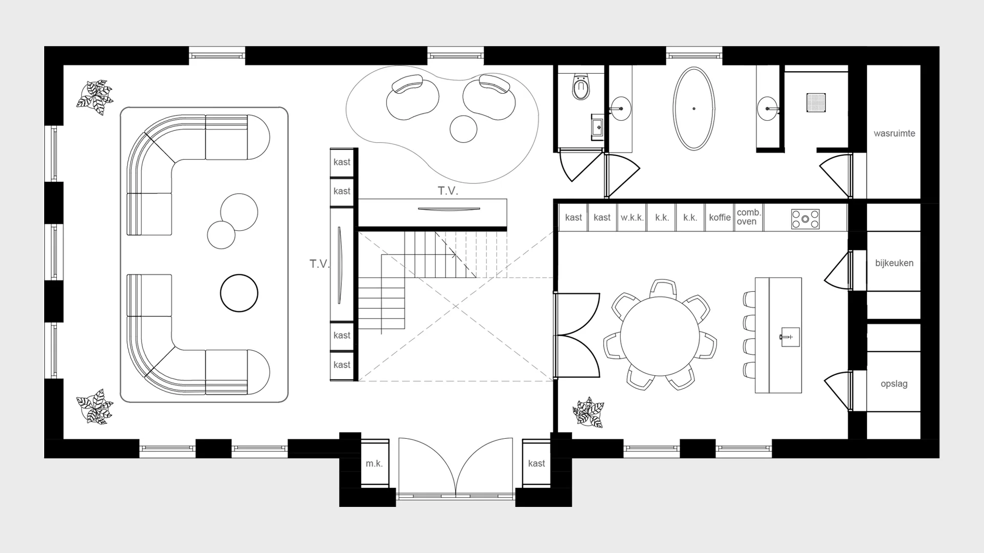
Optimale indeling
Interieur
plattegrond CA
Woningtype: Woonhuis
Type project: Nieuwbouw
Locatie: Den Haag
Oppervlakte: 110 m²
Aantal verdiepingen: 2
Omschrijving
project
Terug naar overzicht
Vorige
Volgende